Quartierskonzept Borgsdorf – Wege zur Klimaneutralität

Projektdetails

Quartierskonzept Borgsdorf – Wege zur Klimaneutralität

Die Bundesregierung hat sich mit dem Klimaschutzgesetz (KSG) zu einer Netto-Treibhausgasneutralität bis 2045 verpflichtet. Das bedeutet, dass in Deutschland ab 2045 nur noch so viele Treibhausgase emittiert werden dürfen, wie auf natürlichem Wege abgebaut werden können.

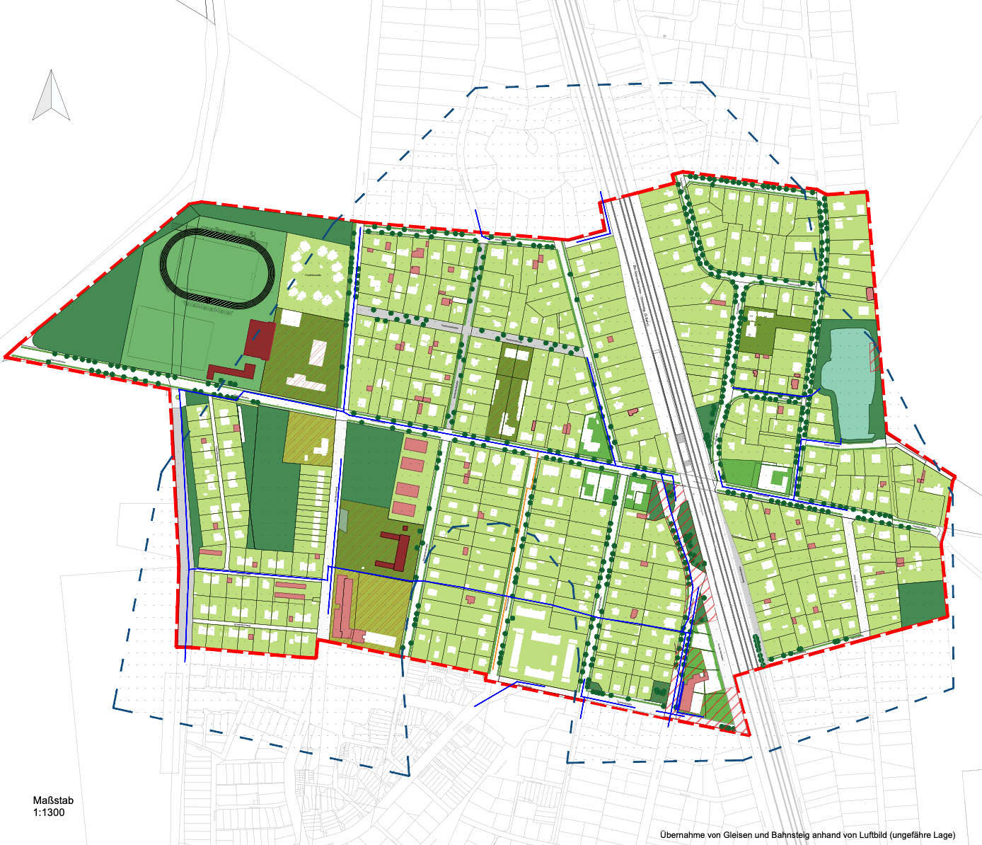
Die brandenburgische Stadt Hohen Neuendorf (26.300 Einwohner) möchte ihre bisherigen Aktivitäten im Bereich des Klimaschutzes im Sinne eines integrierten Quartierskonzepts fortführen und weiterentwickeln. Aufgrund der energetischen und städtebaulichen Ausgangssituation sieht die Stadtverwaltung derzeit einen akuten Handlungsbedarf in der Ertüchtigung der energetischen sowie „Grünen Infrastruktur“ in einem definierten Quartier der Stadt – dem „Quartier Borgsdorf“. Das Quartier bildet einen städtebaulichen Bereich um den S-Bahnhof Borgsdorf, einem Ortsteil der Stadt Hohen Neuendorf.

Zur Entwicklung von Handlungsempfehlungen zur Klimaanpassung wurde von der Bundesregierung und der Kreditanstalt für Wiederaufbau (KfW) das Förderprogramm „Energetische Stadtsanierung (KFW 432)“ aufgelegt. In einem integrierter Quartierskonzept werden entsprechend dem Förderprogramm der KFW die Themenbereiche

  • Energie
  • Mobilität
  • Freiraumgestaltung
  • Klimaanpassung
  • Biodiversität

untersucht.

In einem integrierten Planungsansatz entwickelten die Büros Stadtraum GmbH (Stadtplanung, Mobilitätskonzepte, www.stadtraum.com ), dernersol (innovative und dezentrale Energiesysteme – www.denersol.de ), BBP Bauconsulting GmbH (ökologischen und energiesparenden Gebäudeplanung – www.baucon.de ) und AGU I Goldmann Landschaftsarchitektur das Quartierskonzept, aus dem Handlungsempfehlungen und Maßnahmen für die künftigen klimarelevanten Investitionen der Stadt Hohen Neuendorf definiert wurden.

In verschiedenen Formaten werden Bürger und Bürgerinnen an der Planung beteiligt.

AGU Goldmann Landschaftsarchitektur zeichnete sich verantwortlich für die Themen Freiraumgestaltung, Klimaanpassung und Biodiversität.

Der Bearbeitungszeitraum umfasste März 2022 bis April 2023. Anhand von Datengrundlagen und eigenen Bestandserhebungen werden Daten zur Ausstattung mit Grünflächen des Quartiers, zum Bestand an Flachdächern (für später Begrünungen), zum Bestand an Straßenbäumen und straßenbegleitenden Grünflächen erhoben, analysiert und Maßnahmen zur potenziellen klimatischen Anpassung definiert.

Mit dem Quartierskonzept liegt darüber hinaus auf der Ebene einer Vorplanung ein Konzept zur Umgestaltung des Fürstenauer Platzes vor, in dem die Themen Mobilität, Freiraumgestaltung und Klimaanpassung Eingang finden (AGU GOLDMANN Landschaftsarchitektur und Stadtraum GmbH).

© Copyright - agu Goldmann Landschaftsarchitektur